クリニック開業支援

【ドラッグストア敷地内】札幌市中央区南20条 戸建て

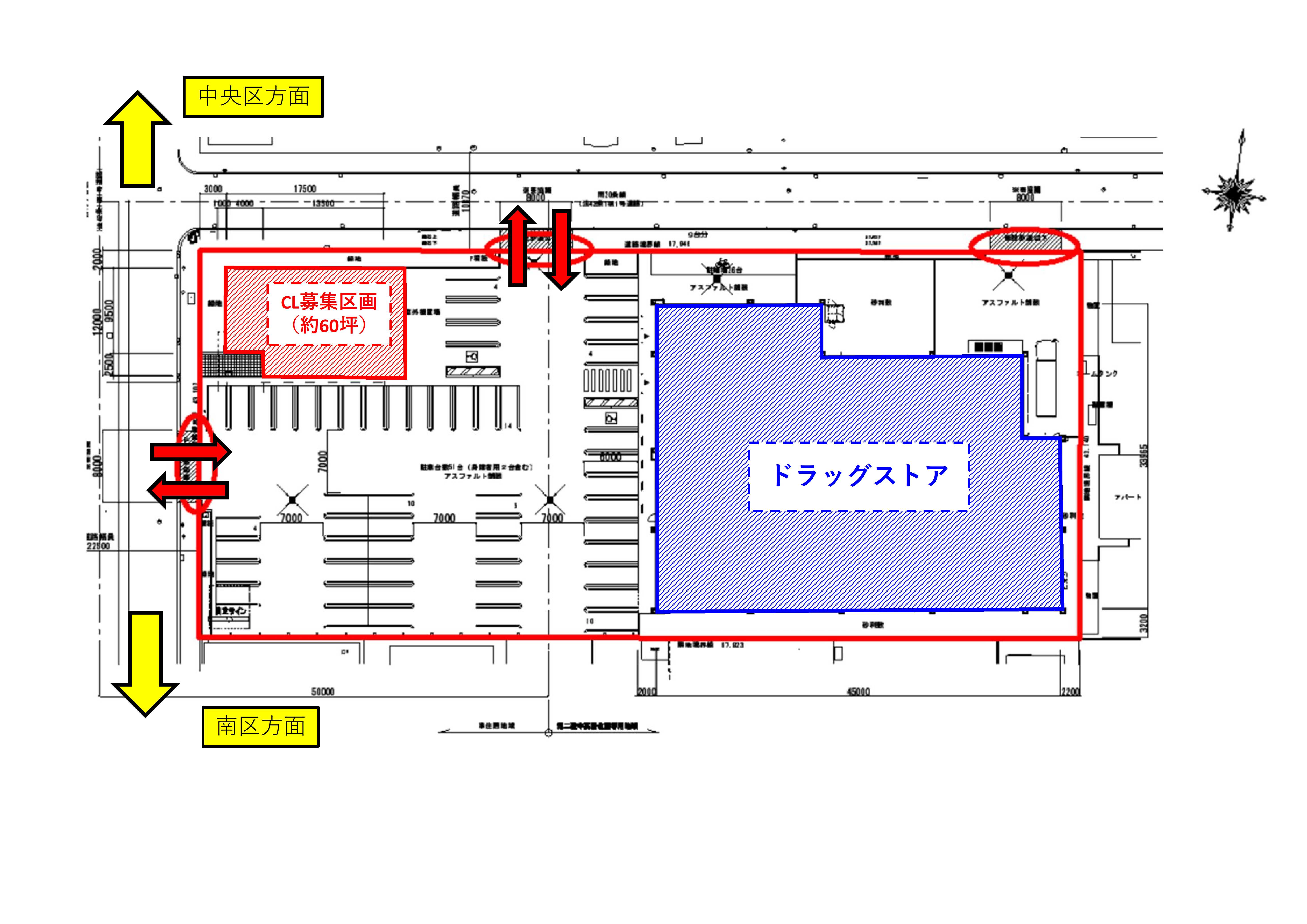
駐車場完備/集客宣伝効果抜群/視認性抜群/

盛業中の新店ドラッグストア敷地内、周辺認知度高い
共用駐車場50台

名称 【ドラッグストア敷地内】札幌市中央区南20条
物件形態 戸建レント
募集科目 内科/泌尿器科/小児科/脳神経外科/心療内科/(歯科・美容系除く)
住所 北海道札幌市中央区南20条西14丁目1-32
交通 札幌市電「ロープウェイ入口駅」徒歩2分
面積・賃料
面積:約60坪

※ご希望により面積相談可(50~70坪程度)
物件PR ■2025年オープンの新店ドラッグストア敷地内で、周辺認知度高い。
■共用駐車場50台完備。
■市電通沿いで公共交通機関ご利用患者様も通院しやすい立地。

画像をクリックすると拡大表示します

※イメージ
クリニック開業支援トップページへ戻るお問い合わせ
CONTACT お問い合わせはこちら